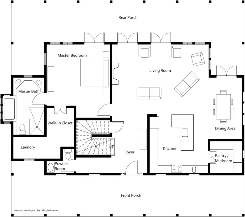
This light-filled, open-plan home would be ideal either for a family with children or for empty-nesters. Abundant windows in every room offer beautiful views, and spacious porches add generous outdoor living space. A first floor master suite with laundry and curbless shower is perfect for aging in place. The second floor reading nook would make a delightful play area, separate from the first-floor living area yet within easy hearing range. The efficient and fully outfitted apartment over the garage could serve as a guest apartment or as living quarters for a live-in nanny or elder caregiver.
- Main house approx. 2700 square feet
- Apartment over garage approx. 400 square feet
- Main house has 4 bedrooms and 3 ½ baths
- Apartment is a studio arrangement with complete kitchenette, sitting area, and roomy full bath
- Garage has two full car bays, a golf cart bay, and a shop bay
- Lot is approx. ½ acre
First floor plan:
Second floor plan:
Apartment Floor Plan:


