Skip to content
Lowcountry Home built with SIPS
Energy-efficient living in a traditional-looking home
Menu
Design Philosophy
About the Designer
Why Green?
The Process: Working Together
Materials & Methods
Impact-Rated Windows
What are SIPs and Why Are They Better?
Contact
Lowcountry Home
Texas Farmhouse
New England Cape
Japanese Pole House in the Caribbean
Georgia Riverside
Previous Image
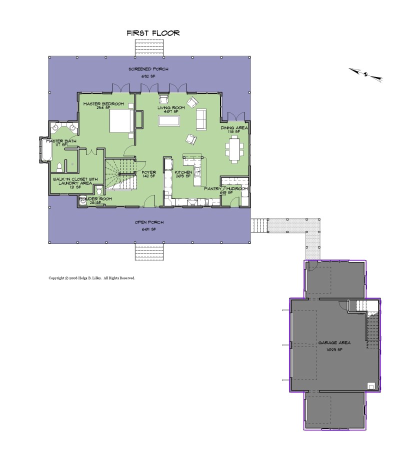
First Floor
First Floor
Leave a comment
Δ
Post navigation
Published in
First Floor
Privacy & Cookies: This site uses cookies. By continuing to use this website, you agree to their use.
To find out more, including how to control cookies, see here:
Cookie Policy
Comment
Lowcountry Home built with SIPS
Sign up
Log in
Copy shortlink
Report this content
Manage subscriptions